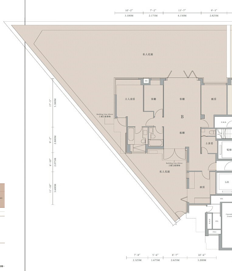
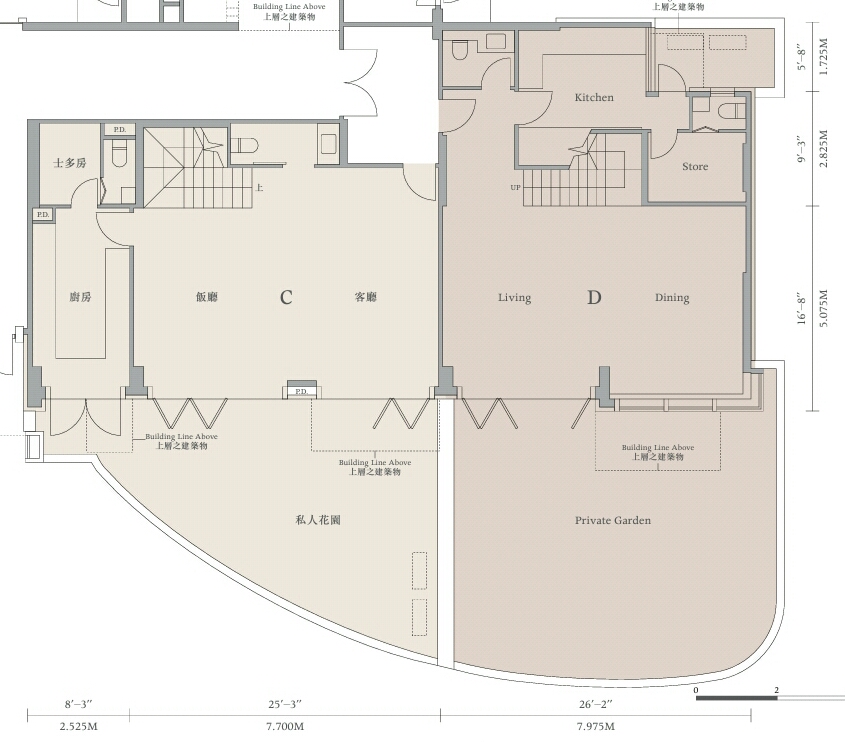
天賦海灣如果包括地下花園和空中花園, 有很多特式單位。精選了一些給大家
Providence Bay have many spacial and duplex units. Inclued some for reference
有興趣人仕可預約參觀天賦海灣示範單位.
Interested person can visit the Providence Bay show flat by making a VIP appointment
(歡迎連絡 http://blog.yahoo.com/centalinedem 中原地產陳先生了解更多資訊 852-51007094 / 86-15012507094)
(Welcome to contact http://blog.yahoo.com/centalinedem Centaline Property agency Mr. Chan for more detail 852-51007094 / 86-15012507094)










沒有留言:
發佈留言